酒店首页
酒店简介
新闻/活动
温馨客房
会议会展
餐饮美食
娱休闲乐
联系我们
1
2
3
万达浪漫婚典
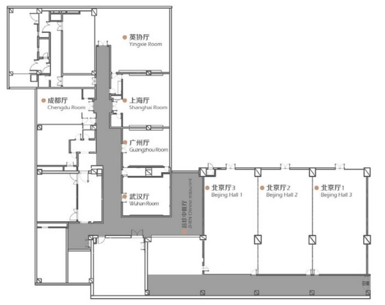
会议室容纳人数以
上海厅
北京宴会厅
中华宴会厅
会议宴会介绍
北京万达嘉华酒店
电话:010- 53659777
地址:北京市石景山区石景山路甲18号1号楼
☆我们的服务·客户的满意☆
会议会展
当前位置:
首页
> 会议会展
会议室容纳人数以及布局
首页
|
酒店简介
|
新闻/活动
|
温馨客房
|
会议会展
|
餐饮美食
|
娱休闲乐
|
服务价格
|
交通地图
|
联系我们
版权所有 © 北京万达嘉华酒店 [www.jhszgbl.com] All rights reserved. 技术支持:
极速动力网络科技
服务热线:010-53659777 地址:北京市石景山区石景山路甲18号1号楼
网站备案:
京ICP备2023001134号-1
友情链接:
百度
360搜索